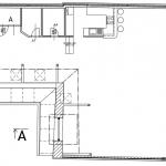
1. poschodie 1A

Najväčší priestor v objekte, otvorený bez priečok. Najväčšia miestnosť má 12x10m, je oddelená 3 schodmi od vstupnej haly, WC a skladu.

Možnosť rozdelenia priestoru priečkami podľa požiadaviek nájomníka. Okná do Bočnej ulice a do dvora. Je možné rozdelenie s 3-mi veľkými izbami, 1x WC, 1x kúpeľňa, kuchyňa.

Spoločné vybavenie budovy a priestorov:

  • zabezpečenie kamerovým a bezpečnostným systémom, nočným osvetlením
  • Video vrátnik
  • počítačová sieť
  • TV rozvod
  • vlastné programovateľné nastavenie kúrenia
  • meranie médií samostatne pre každý priestor
Obsadené: